Fabian Lippert Architekt

hut10


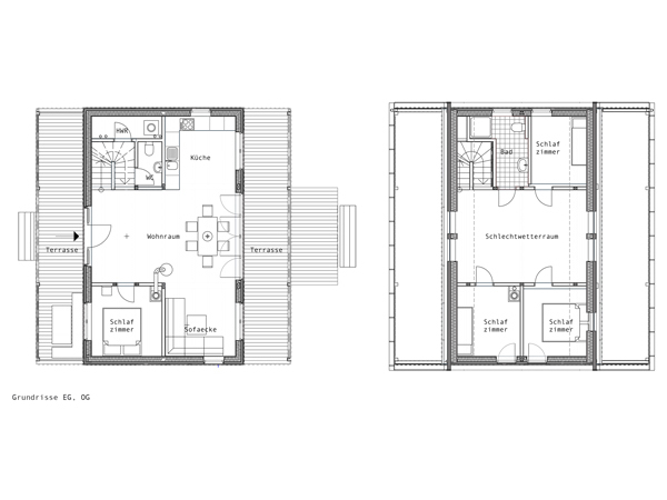
Die geforderte hohe Zimmerzahl bei zugleich begrenzter Gesamtgebäudefläche wird durch den Verzicht auf Flure erreicht. Die Schlafkammern sind nur jeweils ca. 9 qm groß. Neben einem großzügigen Wohnbereich im EG wurde ein weiterer Gemeinschaftsraum im OG der so genannte ‘Schlechtwetterraum’ entwickelt. So kann sich die Familie auch bei schlechtem Wetter in verschiedenen Bereichen des Hauses aufhalten. Die Mansarddach-form ermöglicht es, in den Innenräumen des Obergeschosses - trotz Einhaltung der geforderten 1‚5 -Geschossigkeit des Baukörpers - großzügige Raumhöhen zu erzeugen.